




|
5 |
|
1 |
|
3 |
|
4 |

|
2 |
|
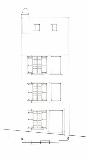
Z.P.P.A.U.P.
D'OLORON SAINTE MARIE FICHE
D'ANALYSE DU PARTIMOINE ARCHITECTURAL
N° 286 1/2 52 rue Labarraque |
||
|
DOCUMENTS
GRAPHIQUES A consulter |
||
|
Plan
géométrique 1809 (Oloron) Plan
d’alignement 1821 (Oloron) Plan
cadastral Napoléonien
(Sainte-Marie) Plan
cadastral Napoléonien (Oloron) |
|
Autres documents Cartes postales
anciennes |
|
SITUATION ET CONTEXTE URBAIN A PRENDRE EN COMPTE |
||
|
|
||
|
elements anciens a conserver |
||
|
|
||
|
Z.P.P.A.U.P.
D'OLORON SAINTE MARIE FICHE
D'ANALYSE DU PARTIMOINE ARCHITECTURAL
N° 286 2/2 52 rue Labarraque |
|
ELEMENTS D'ARCHITECTURE A restituer ou transformer |